Beschrijving
Dit waanzinnig ruime halfvrijstaande woonhuis met mooie tuin, oprit en carport komt nu te koop.
Bent u op zoek naar ruimte dan is dit een absolute aanrader!
Licht, ruimte en privacy spelen hier een grote rol!
De woning is keurig onderhouden en de woonkamer is aan de achterzijde over de volle breedte uitgebouwd, deze uitbouw is voorzien van grote ramen, dubbele tuindeuren en een riante lichtstraat waardoor er een mooie lichtinval ontstaat. Aan ruimte geen gebrek!
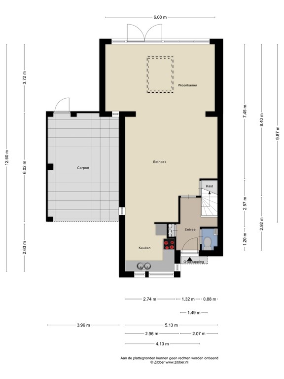
Indeling
Via de voordeur bereikt men een ruime hal, meterkast, toilet met closet en fonteintje, trap naar de eerste verdieping en toegang tot de riante woonkamer.
De woonkamer is bijzonder royaal in de afmetingen en men heeft tal van mogelijkheden qua indeling. Er is ruimte voor een ruim zitgedeelte, een eetgedeelte, werkhoek of speelhoek, een inpandige voorraadkast en aan de voorzijde een open keuken.
De woonkamer en hal zijn uitgevoerd met massieve eiken vloerdelen. Verder heeft men hardhouten kozijnen met dubbel glas en glas in lood ramen in dubbel glas en overal rolluiken, deels elektrisch, deels handbediend. De lichtstraat geeft een prachtige lichtinval.
Vanuit de woonkamer een mooi zicht op de omsloten tuin. U heeft geen inkijk in de tuin omdat de omliggende bebouwing haaks is geprojecteerd op de tuin!
Aan de voorzijde een ruime open keuken in hoekopstelling welke is voorzien van inbouwapparatuur als inductiekookplaat, afzuigkap, oven, koelkast en vaatwasser. Ook de voorzijde van de woning is voorzien van rolluiken.
Eerste verdieping
Op de eerste verdieping een overloop, 3 mooie slaapkamers en een ruime badkamer. De gehele eerste verdieping is voorzien van een lichte laminaatvloer.
De kleinste slaapkamer is gelegen aan de achterzijde en is voorzien van een vaste kastenwand met schuifdeuren. Dit is eenvoudig te verwijderen waardoor er een mooie ruime slaapkamer ontstaat. Het raam is voorzien van dubbel glas en een handbediend rolluik.
Aan de achterzijde de ruime ouderslaapkamer met groot raam en rolluik.
Aan de voorzijde de derde ruime slaapkamer, eveneens voorzien van groot raam en handbediend rolluik.
De badkamer is ruim en voorzien van licht tegelwerk, een ligbad met douche, een wastafel, toilet, designradiator en een uitzetraam. Het sanitair is netjes doch enigszins gedateerd.
Tweede verdieping
Via de vaste trap op de overloop bereikt men de tweede verdieping alwaar een ruime open bergzolder met mogelijkheid voor de realisatie van een of twee extra kamers (door een dakkapel te plaatsen).
Alle verdiepingsvloeren zijn uitgevoerd in beton, de zadelkap is geïsoleerd en thans voorzien van een groot Velux dakraam en een kleiner dakraam. Ook vind men hier de opstelling van de cv combiketel, een AWB Thermomaster 3HR28T CW4 combiketel uit 2004.
Tuin
Aan de voorzijde een leuk aangelegde voortuin met een variatie aan beplanting, naast de woning een lange oprit met carport. De carport heeft een schuin dak en een luik naar een bergruimte onder het schuine dak. Aan de achterzijde een afsluitbare poort welke toegang biedt tot de ruime achtertuin.
Aan de achterzijde een prachtig aangelegde tuin met terras, looppad, variatie aan beplanting, een houten tuinberging en een stenen berging. Beide bergingen zijn voorzien van elektra. De tuin is omsloten middels een schutting rondom, er is een buitenkraan aanwezig, er is eveneens een buitenkraan onder de carport gerealiseerd. De tuin heeft een optimale privacy en een perfecte zongerichte situering.
Bijzonderheden
- Bijzonder ruime hoekwoning met carport en mooi aangelegde tuin.
- Woning is aan de achterzijde over de volle breedte uitgebouwd.
- Prachtige royale leefruimte op de begane grond.
- Sfeervolle massieve eiken vloer in hal en woonkamer.
- Woning is geheel voorzien van rolluiken.
- In de vraagprijs is rekening gehouden met het feit dat de woning enige aandacht vereist qua binnen schilderwerk, sanitair en keuken.
- 3 mooie slaapkamers op de eerste verdieping, extra slaapkamer mogelijk op de tweede verdieping.
- Energielabel C, met o.a. plaatsing van zonnepanelen wordt dit eenvoudig label A.
- Rustig gelegen in gewilde woonomgeving op korte afstand van alle voorzieningen.
- Dit mooie huis dient u van binnen te ervaren voor de juiste impressie.
- Bel voor een vrijblijvende bezichtiging met ons kantoor.
Plattegronden
178376104_1586188_gouno_begane_grond_first_design_20251023_8fcf8d.jpg
178376104_1586188_gouno_eerste_verdiepi_first_design_20251023_4e2e58.jpg
178376104_1586188_gouno_tweede_verdiepi_first_design_20251023_e8a8c8.jpg
178376104_1586188_gouno_vliering_first_design_20251023_36958a.jpg
178376104_1586188_gouno_berging_first_design_20251023_50696f.jpg
178376104_1586188_gouno_berging_first_design_20251023_43b034.jpg